Как самому пошить жалюзи. Выбор модели и материала
- Как самому пошить жалюзи. Выбор модели и материала
- Как сделать жалюзи своими руками из ткани на пластиковые окна. Изготовление жалюзи
- Жалюзи из ткани своими руками: пошаговая инструкция. Как сделать тканевые жалюзи
- Вертикальные жалюзи своими руками из ткани. Как сшить жалюзи из ткани своими руками: порядок выполнения работ
- Жалюзи из ткани, как называются. Особенности, преимущества и недостатки матерчатых моделей
- Жалюзи из тюли своими руками. Самостоятельное изготовление жалюзи
Как самому пошить жалюзи. Выбор модели и материала
Непосредственному пошиву жалюзи предшествуют два подготовительных этапа: выбор модели текстильного изделия и покупка материала для его пошива.
Различают две модели текстильных жалюзи:
- Горизонтальные – ламели, представленные тканевыми полосами, соединены в единую «лесенку», которая открывается/закрывается посредством подъемного механизма.
- Вертикальные – ламели зафиксированы в верхней части конструкции. Тканевые полосы обособлено друг от друга поворачиваются под любым углом, за счет чего жалюзи можно сдвигать/раздвигать в различных направлениях.

Горизонтальные тканевые жалюзи: ламели соединены в единую лесенку, которая открывается и закрывается поворотным механизмом
Что касается выбора материала, то здесь вариаций множество – по большому счету жалюзи можно пошить из любой плотной ткани, которая держит форму. Но, как показывает практика, для этой роли чаще всего выбирают следующие виды материалов:
- Жаккард – надежная и долговечная ткань из натуральных или искусственных волокон повышенной плотности. Главная особенность – сложный рельефный рисунок, который придает жалюзи особый шик и изысканность.
- Black-out – светонепроницаемая ткань на основе полиэстера. За счет выраженного эффекта затемнения идеально подходит для спален, кабинетов и прочих комнат, где необходимо уединение.
- Dim-out – полупрозрачная ткань на основе хлопка или полиэстера. Материал пропускает солнечный свет, но не напрямую, а мягко рассеивая по комнате.
Совет. Выбирая ткань, обратите внимание, чтобы она была обработана грязеотталкивающими и антибактериальными пропитками.
Как сделать жалюзи своими руками из ткани на пластиковые окна. Изготовление жалюзи
Несмотря на то, какой вид жалюзи был выбран, и какая для их изготовления была выбрана ткань, необходимо точно измерить оконный проем и определить с местом крепления конструкции. В случае с горизонтальными и рулонными жалюзи креплением лучше всего сделать либо непосредственно на раму окна, либо немного выше проема окна. Вертикальные самодельные жалюзи так же можно зафиксировать на потолке, прикрыв место крепления специальным карнизом.
Вертикальные жалюзи
На подготовительном этапе выполнения работ необходимо определится с шириной ламелей, стандартным значением которой является величина равная 89 или 127 мм. Но, так как жалюзи из ткани изготавливаются самостоятельно, ее можно изменить, исходя из общей ширины светозащитной конструкции.
Выбирая ширину ламели вертикальных жалюзи необходимо учитывать размеры оконного проема: чем он уже, тем уже должна быть ширина тканевых полос.
При выполнении работ по созданию конструкции жалюзи так же понадобится пластмассовая или алюминиевая направляющая на которой имеются ползунки вращающиеся и перемещающиеся вдоль нее, небольшой толщины деревянные рейки, прочный шнур и резьбовые кольца и крючки.

Пошагово самостоятельное изготовление вертикальных жалюзи сводится к следующему:
- выкраивание ламелей с учетом того, что ткань будет складываться вдвое и прошиваться, то есть необходимо дополнительно оставить место для припусков;
- прошивка ткани каждой ламели с трех сторон с внутренней стороны и последующее выворачивание готового элемента лицевой стороной наружу;
- отглаживание и обработка четвертой стороны элемента;
- приклеивание тонких деревянных реек сверху и снизу каждой ламели;
- закрепление резьбового крючка на середине каждой верхней деревянной рейки;
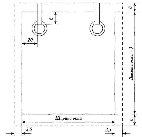
- устройство отверстий по центру каждой верхней деревянной рейки, а так же закрепление с двух сторон от него по одному резьбовому крючку с последующим пропусканием через отверстие и крючки шнура поворотного механизма. Шур в отверстии закрепить при помощи клея, а его конца оформить в виде петель свисающих вниз на 20-30 см;
- навешивание ламелей на направляющие;
- скрепление ламелей в нижней части по средствам шнура пропущенного через предварительно сделанные отверстия по центру реек;
- прикрепление тонкой штанги к направляющей для обеспечения возможности передвижения ламелей по ней.
Жалюзи из ткани своими руками: пошаговая инструкция. Как сделать тканевые жалюзи
Для создания рольштор не нужно тратить много времени.

Вариант жалюзи
Чтобы сделать их самостоятельно, нужно приготовить следующие инструменты и материалы:
- Кусок ткани нужной расцветки.
- Линейка или сантиметровая лента. Портные пользуются сантиметром, но для измерения небольших участков пригодится небольшой линейкой.
- Ножницы. Лучше иметь портняжный инструмент, так как с его помощью можно быстро и аккуратно кроить детали из плотного материала.
- Шило для отверстий, в которые будут вдеваться шнуры или декоративные нити.
- Жидкие гвозди.
- Веревка для регулировки открытия штор и попадания светового потока внутрь комнаты.
- Небольшой грузик для предотвращения раскачивания полотна и его распрямления по длине оконного проема.

Рулонные
Стоит разобрать небольшой мастер-класс по изготовлению римских штор своими руками .
Выбирается ткань нужной расцветки и текстуры. Технологический процесс напоминает изготовление парусов для древних кораблей римских мореплавателей.
Штора имеет складки в нижней части. Если материал выбран с рисунком, то в раскрытом виде он будет служить украшением всего помещения, поэтому при выборе ткани стоит опираться на интерьер комнаты, чтобы новые шторы не выбивались из общей цветовой гаммы. Советы, которые помогут при работе:
- Постарайтесь, чтобы нити и фактура рисунка были максимально близки по тону.
- Подберите ткань, которая будет размещаться с внутренней стороны.
- Приобретите жидкие гвозди.
- Подготовьте шнур для крепления и булавки.
- Без пластиковых или деревянных утяжелителей здесь не обойтись, поэтому их тоже нужно подобрать в соответствии с тканью.
- Запаситесь шурупами, гвоздями и ножницами.
Источник: https://alyuminievye-zhalyuzi.aystroika.info/stati/lameli-dlya-zhalyuzi-svoimi-rukami
Вертикальные жалюзи своими руками из ткани. Как сшить жалюзи из ткани своими руками: порядок выполнения работ
В России широко распространены жалюзи, сделанные из ткани, благодаря тому, что ламели могут иметь самые различные цвета и любой тип фактуры, а также уровень плотности и т.д. Тканями для ламелей могут быть и хлопчатобумажная и любая другая. Изготовить из ткани своими руками жалюзи очень просто.

Вертикальные жалюзи из ткани широко распространены благодаря разнообразию вариантов дизайна и удобству в использовании.
Жалюзи являются многоуровневой системой, основанной на регулировании полосок ламели самым тщательным образом. Это позволит защитить комнату от попадания ярких лучей солнца. Различают горизонтальные и вертикальные виды жалюзи. Это зависит от способа установки полосок-ламелей в конструкцию жалюзи.
Материалы для изготовления жалюзи и порядок выполнения работ
Сделать жалюзи своими руками можно, если под рукой есть ткань или пластик, можно использовать и алюминий.

Стеклоткани изготавливают из стекольного волокна, такие ткани не подвержены влаге, не горят и служат очень долго.
Сшить жалюзи из ткани проще всего, в этом случае лучше изготавливать вертикальную конструкцию. Выбирая ткань для изготовления жалюзи, обязательно следует присматриваться к тому, насколько плотной она является.
Срок службы ламелей будет напрямую зависеть от их плотности. Вместе с тем этот показатель оказывает основное влияние на стоимость материала. Лучше не тратить время на выбор нетканого материала, поскольку он подвержен влиянию влажности и может быстро испортиться.
При желании сделать на кухню жалюзи можно приобрести стеклоткань, которая является пожаробезопасной в наибольшей степени, чем другие виды тканей. При горении стеклоткани не происходит выделение вредных веществ. Можно не применять для обработки водоотталкивающую пропитку, как для других видов тканей. На солнце стеклоткань способна долго сохранять свой цвет.
В любом специализированном магазине можно приобрести бегунок, который является комплектующим для жалюзи. От качества установки бегунков будет зависеть качество работы жалюзи, на которую может оказывать влияние и качество самого бегунка. В качестве материала для изготовления бегунков жалюзи служит пластик.
Перед тем как сделать жалюзи, изготавливают выкройку. По ней необходимо вырезать материал так, чтобы каждая деталь была аккуратной, иначе при шитье могут появиться определенные погрешности, которые не следует допускать. Когда полотна уже выкроены, то для дальнейшего изготовления жалюзи их следует подшить с каждой стороны, подгибая материал не более чем на 2 см.
Далее приступают к изготовлению крепежа, когда уже подшиты полоски. Затем необходимо протянуть шнурки, с помощью которых ламели следует двигать. Бегунок заранее крепят к карнизу, чтобы он мог свободно перемещаться, а с другой стороны на него цепляют ламели. Готовое изделие должно быть надежно закреплено на карнизе, после этого им можно пользоваться.
Как сделать жалюзи своими руками для лоджии

Схема выкройки рулонной шторы.
Наилучшим решением при выборе вариантов жалюзи можно назвать рулонные, которые являются идеальными для лоджий. Изготавливая их своими руками, можно сэкономить, сделав интерьер лоджии модным. Если сделать их самим, то изделие будет не только красивым, но и удобным.
Лицевую и изнанку можно сделать из двух кусочков ткани. Можно взять материал различных фактур и цветов, что позволит создать дизайнерский шедевр. Вам пригодятся:
- ткань;
- нитки;
- ножницы;
- карандаш;
- сантиметр;
- степлер;
- калька;
- саморезы по дереву;
Поперечник круглого бруска может составлять 1,5 — 2 см, а сечение квадратного — около 2 х 2 либо 2,5 х 2,5 см. Вместо бруска круглой формы можно использовать железный пруток. Не следует выбирать прут с большой массой, иначе жалюзи могут упасть.
Начинать выполнение работ следует с определения всех размеров изделия. От точности всех измерений будет зависеть его качество. Ширину изделия следует брать соответствующей размеру проема. Прибавка будет около 2 — 3 см на припуски по всем сторонам. Длина жалюзи будет соответствовать высоте проема окна с прибавкой от 10 до 15 см и около 2 — 3 см на швы. Из ткани лучше сгодятся парусина или хлопок.

Конструкция рулонной шторы проста в исполнении и позволяет создать по-настоящему дизайнерские варианты оформления окна.
Из бумаги или кальки вырезают прямоугольник, учитывая все размеры. После этого деталь накладывают на материал с его изнанки, прикрепляя с помощью швейных булавок через каждые 10 — 15 см. Выкройку аккуратно придерживают руками и обводят мелом. После этого снова отмеряют от сделанной линии около 2 — 3 см, чтобы обвести деталь. Все это необходимо повторить сначала с изнаночным материалом.
Жалюзи из ткани, как называются. Особенности, преимущества и недостатки матерчатых моделей
Основные аргументы за покупку жалюзи из пластика и алюминия – практичность, универсальность и нетребовательность в обслуживании, тогда как в случае с аналогами из ткани, на первое место выходят их непревзойдённые декоративные качества. Хотя преуменьшать значение светозащитных функций матерчатых изделий тоже не стоит: они на 100% справляются с задачей регулировки объёма светового потока в помещениях с различным функционалом.
Нередко возникает путаница в названиях солнцезащитных систем из ткани, которые частенько именуют рулонными, защитными, внутренними жалюзи. Давайте разберёмся. Вне зависимости от внешнего вида жалюзи, делает их таковыми наличие поперечно или горизонтально расположенных полосок – ламелей, поворачивая которые можно отрегулировать степень освещённости помещения. Модели без ламелей называются уже шторами. Конструкция рулонных штор отличается цельным строением.
В этом случае регулировка светового потока возможна лишь путём частичного открытия/закрытия полотна. То есть, пользователь «ловит» солнечные лучи, переводя штору в положение, ограничивающее доступ прямого солнечного света.
Исключением является модель «Зебра» со строением, аналогичным строению штор, но с рисунком в виде горизонтальных полос и двухслойной тканью. За счёт смещения полосок эффект здесь будет тот же, что и у жалюзи, но шторой из-за этого она быть не перестанет.
Другое название рулонных штор – тканевые роллеты. Стабильно высокий спрос на солнцезащитные изделия из ткани обусловлен их многочисленными достоинствами, среди которых:
- Привлекательность внешнего вида – с ними любой интерьер выглядит изысканнее.
- Функциональность.
- Продолжительный срок службы.
- Безграничные возможности для организации оконных проёмов самого разного размера, в том числе окон нестандартной конфигурации: круглых, овальных, арочных, треугольных.
- Громадная палитра оттенков и множество вариантов дизайнерских решений позволяют подобрать идеальную модель для любого интерьера.
- Простое управление.
Отдельного внимания заслуживает целый набор особых защитных свойств матерчатых моделей:
- грязеотталкивающие;
- пылеотталкивающие;
- антистатические;
- антибактериальные;
- водоотталкивающие;
- невосприимчивость к посторонним запахам;
- пожаробезопасность;
- повышенная устойчивость к воздействию УФ-излучения.
Все эти полезные качества они приобретают благодаря использованию специальных пропиток для тканей, а это в конечном итоге влияет на практичность и долговечность изделий.
Минусы:
- У большинства моделей ткань в той или иной мере пропускает солнечные лучи. Исключение – рулонные шторы из светонепроницаемых материалов Блэкаут.
- Ламели вертикальных жалюзи обладают небольшим весом, что лишает их способности оставаться в неизменном положении при сквозняках или проветривании помещения.
- Высокая стоимость жалюзи-плиссе – одной из разновидностей тканевых моделей. Для сравнения: вертикальные жалюзи из ткани обойдутся от 490 до 1100 руб. /м2, (blackout от 1750 руб. ), тогда как стоимость плиссе начинается от 3000 руб. /м2.
- Некоторым моделям из ткани противопоказано взаимодействие с водой , поэтому единственным вариантом ухода за ними остаётся сухая чистка, причём профессиональная, что влечёт за собой дополнительные расходы.
Жалюзи из тюли своими руками. Самостоятельное изготовление жалюзи
Как сделать жалюзи своими руками, интересует многих. В комнаты со слабым освещением идеально впишутся жалюзи из ткани, их также называют римскими шторами. Эти изделия открываются вверх, и свет максимально попадает в комнату. Чтобы сделать их своими руками, нужно иметь следующие материалы:
- ткань, подходящую по дизайну комнаты;
- нейлоновый шнур;
- нитки в цвет материи;
- подкладочную ткань;
- ножницы;
- липучки;
- набор маленьких (мебельных) гвоздей и шурупов;
- металлическую либо деревянную планку для утяжеления полотна;
- деревянную планку с диаметром примерно 4 мм.
До начала работы измеряют окно. По размеру штора должна быть равна ширине оконного проема, и немного нужно оставить для припусков. От ширины складок зависит длина тканевых жалюзи, ее можно выбрать самопроизвольно. Сперва выкраивают цельный прямоугольный отрез. Потом обрабатывают боковые края, после чего снизу прошивают карман для утяжеляющей планки.

Прежде чем обработать верхнюю часть, необходимо выбрать метод крепления движущегося механизма. Будет просто, если прикрепить штору на карнизе или планке из дерева. После отмеривания той части ткани, которая нужна для крепления, выкраиваются будущие складки. Большое значение имеет то, чтобы по ширине они были одинаковыми. Важны те расстояния, которые ограничивают линии разметки: каждое должно быть в 2 раза больше величины складки.
В кармашки, которые образуются шитьем тесьмы по размеченным линиям, вставляются планки. При помощи нейлоновых шнурков штора поднимается по вертикали. Шнуры регулируются кольцами, пришитыми к тесьме в том же направлении. Тканевые жалюзи поднимаются за счет фиксации шнуров связками в нижней части механизма. Верхними кольцами их подвешивают на карниз. Потом шнурки нужно вывести на одну сторону, по всем верхним кольцам. Движение жалюзи ограничивает фиксация шнуров. Для этого к стене прибивают скобу или крюк.